

更多了解請咨詢:13818914810李小姐(微信同號)

新道茨機械隔膜計量泵ND1000系列優勢特點
1. 機械驅動隔膜組件,操作簡單維護方便,泵頭無泄漏。
2. 運行平穩,低噪音。
3. 高精度高強度的傳動部件,使得計量泵高效率輸出的同時,兼具超低的維護成本。
4. 優良的改性全PTFE隔膜組件,大大提高了膜片的壽命,使之不宜成為易損件。
5. PVC、PVDF、PTFE、SS316各種泵頭材質,可以適用于各種藥液的投加。
6. 可選配電動沖程調節裝置4-20mA、變頻電機和防爆電機。
新道茨機械隔膜計量泵ND1000系列型號規格表
型號 | 流量 | 壓力 | 單次沖程流量 | 泵速 | 行程 | 膜片直徑 | 電機 |
L/h | Bar | ml/stroke | SPM | mm | mm | W | |
ND1000-660/0.5 | 660 | 5 | 93 | 118 | 10 | 160 | 750 |
ND1000-1000/0.4 | 1000 | 4 | 93 | 177 | 10 | 160 | 750 |
ND1000-1200/0.3 | 1200 | 3 | 113 | 177 | 12 | 160 | 750 |
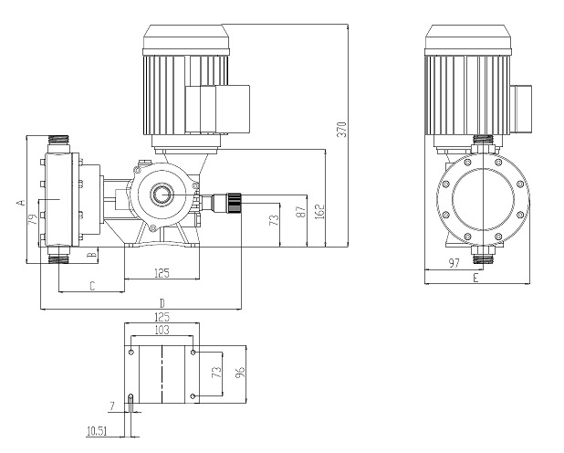
新道茨機械隔膜計量泵ND1000系列安裝尺寸圖

李海平 客戶經理
13818914810
地址:上海市閔行區光華路188號3號廠房
電話:021-64890289
郵箱:sales@kuosi.com.cn
傳真:021-51686350
網址:m.gd101yj.com
